

Appartement neuf T2 de 42,1 m² avec balcon en revente à Paris 20e (75020)
Description du bien
Revente-VEFA vous présente une très belle opportunité d'acquérir un appartement T2 neuf en revente avant achèvement dans une résidence intimiste en cours de construction dans le 20e arrondissement de Paris.
La résidence "Les Terrasses du 25" est idéalement située au 25 rue Alphonse Penaud à proximité des commerces, services et transports (métros 3 et tram T3B). Elle sera livrée à partir du 4ème trimestre 2025, et comprendra à son achèvement 10 logements dans un immeuble de 5 étages avec ascenseur.
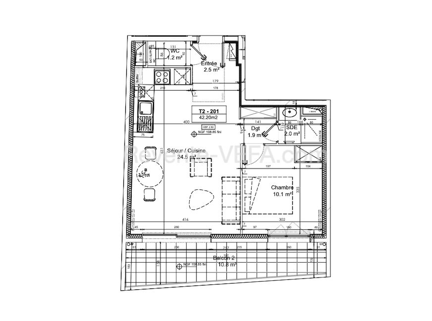
Au 2ème étage sur rue, cet appartement 2 pièces de 42,1 m² comprend : une entrée, un espace jour (24,5 m²) avec séjour et cuisine ouverte, un placard aménagé, une chambre (10,1 m²) avec placard, une salle d'eau et des WC séparés. Le séjour et la chambre ouvrent sur un beau balcon filant (10,8 m²).
Très bon plan sans perte d'espace. Production de chauffage et d'eau chaude individuelle (chaudière gaz à condensation). Parquet sur chape acoustique dans l'entrée, le séjour et la chambre. Menuiseries extérieures en aluminium avec double vitrage et volets roulants électriques. Porte palière blindée avec serrure de sécurité 5 points A2P**. Ascenseur. Local vélos. Construction RT 2012 améliorée de 20% et NRA (nouvelle réglementation acoustique).
Cet appartement est vendu en état futur d'achèvement. Vous bénéficierez de nombreux avantages et garanties du neuf : isolation thermique renforcée, charges maîtrisées, éligibilité aux dispositifs PTZ et Pinel, pas de travaux/ravalement à prévoir, garantie de parfait achèvement, garantie décennale,...
Visuels non contractuels.
Contactez-nous dès aujourd'hui pour plus d'informations et pour réserver votre appartement neuf à Paris.
Certifications et labels qualité
Les plans
Caractéristiques du bien
Générales
Intérieur
Annexes et espaces extérieurs
Construction
Prix et fiscalité
Localisation
Accès
- À 450 m du métro 3B - station « Pelleport »
- À 300 m du tramway T3B - station « Severine »
Nos dernières annonces





