

Appartement neuf T6 Duplex de 153 m² en plein cœur de Trouville-sur-Mer (14)
Description du bien
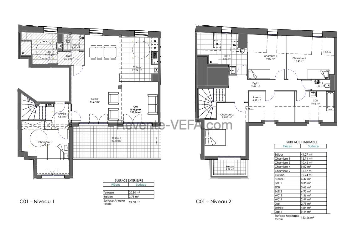
Revente-VEFA vous propose en exclusivité un grand duplex neuf T6 traversant de 153,66 m² avec terrasse et parking en revente dans la nouvelle résidence CALIXTE en cours de construction en plein cœur de Trouville-sur-Mer.
La résidence prend place au 88 Boulevard d'Hautpoul et profite d'une situation exceptionnelle à quelques pas du port de Trouville, de la plage, des commerces, des restaurants et du pont des Belges permettant de rejoindre Deauville. La gare SNCF de Trouville-Deauville n'est qu'à 500 m de la résidence et permet de rejoindre Paris en 2h.
La résidence sera livrée à partir du 4ème trimestre 2026 et comprendra à son achèvement 23 logements répartis entre 4 bâtiments situés entre le boulevard d'Hautpoul et la rue Guillaume le Conquérant.
Ce duplex de 153,66 m² est situé aux deux derniers étages d'un petit bâtiment de 2 étages situé côté ruelle Desseaux. Il vous séduira par ses surfaces généreuses, ses espaces extérieurs et sa situation traversante Sud-Ouest - Nord-Est. Il comprend :
- Au rez-de-chaussée (1er étage) : une entrée avec placard, un grand séjour traversant (41 m²) ouvrant sur une grande terrasse (20,8 m²) orienté Sud-Ouest, une cuisine équipée ouverte sur le séjour (pouvant être séparée), une chambre (15,74 m²), une salle d'eau, des WC séparés, et un escalier menant à l'étage.
- À l'étage (2ème et dernier étage) : une chambre (15,87 m²) avec balcon (3,78 m²), deux autres chambres (9 m² et 10,45 m²), un bureau, une salle d'eau avec WC, une salle de bains et des WC séparés.
Une place de stationnement en sous-sol complète ce bien.
Carrelage "esprit parquet" dans toutes les pièces. Chaudière individuelle au gaz. Menuiseries extérieures en bois avec double vitrage isolant et volets roulants électriques. Thermostat d'ambiance et pack domotique pour contrôler à distance les volets roulants et le chauffage. Cuisine équipée. WC suspendus. Salles d'eau avec faïence toute hauteur, radiateur sèche-serviettes, bac à douche ultra-plat, meuble vasque, miroir et bandeau lumineux. Porte palière avec serrure 5 points A2P*. Résidence clôturée et sécurisée par digicode, badge et vidéophonie.
Loi ALUR :
Prix : 860 000 € TTC honoraires d'agence inclus
Livraison prévisionnelle : T4 2026
Avancement : Hors d'eau (70%)
PTZ : éligible
DPE prévisionnel : (C)
Nombre de lots dans la copropriété : 42 (dont 16 lots d'habitation)
Estimation des charges courantes : ~ 400 €/mois
Documentation complète sur demande.
Certifications et labels qualité
Les plans
Caractéristiques du bien
Générales
Intérieur
Annexes et espaces extérieurs
Construction
Prix et fiscalité
Localisation
Accès
- 200 km de Paris par l'autoroute A13
- 340 km de Nantes par l'A84 et la N137
- 420 km de Brest par la N12
- 610 km de Bordeaux par l'A28 et l'A10
La gare la plus proche est celle de Trouville–Deauville à 500 m de la résidence :
- Gare Évreux Normandie : 43 min
- Gare Caen : 55 min
- Gare de Rouen : 1h07
- Paris Gare Saint Lazare : 2h
Nos dernières annonces





